产品详情
▼产品概述:
集装箱在文旅景区内的应用越来越受欢迎,其独特优势在于不占用景区的土地指标,仅需临建手续就可以快速搭建。上海扬品建筑在国内拥有多项3A-5A级景区内落地案例。业内资深工程师根据地形复杂程度及景区特点给予客户合理搭建方案,定制规划建筑的景区坐落点,可优化布局景区内文化展示、小型商业和休息区等多种建筑体系,为景区增添一份时尚和现代感。同时,集装箱所具有环保、可重复利用的特点,也符合现代旅游产业对可持续性的需求。
文旅景区集装箱集装箱的优势如下:
1.坚固耐候:集装箱墙板为钢架铝合金板制成,侧板标准厚度是1.6mm,顶板是2.0mm,可抗10级飓风、8级地震,使用年限20年以上。
2.空间宽阔:与砖混结构建筑相比,增加了4%的使用面积,内部可随意装修,内置家居、家电,立即可以投入使用。
3.复用率高:一体式箱体,可移动重复使用,对环境没有要求,对土地没有破坏,可按照业务需要进行整体搬迁。
4.结构标准:海运集装箱按照国际标准为20尺柜,承重25T;40尺柜,承重45T。可依据实际项目的需要设计单体集装箱建筑或组合式集装箱建筑。
5.经济环保:安装速度快,集装箱建筑比传统建筑节约40%以上的建筑时间;同时减少99%的施工和装修废物,绿色环保、无建筑垃圾。
6.造型美观:门窗布局灵活,可对集装箱外立面进行创意设计,使集装箱建筑与环境融为一体,成为一道亮丽的风景线。
▼产品应用:
集装箱文旅景区、集装箱游客中心、集装箱餐厅、集装箱咖啡店、集装箱接待中心、集装箱驿站、集装箱管理用房
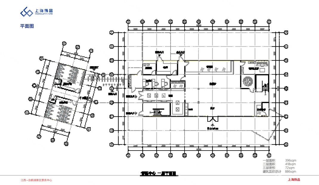
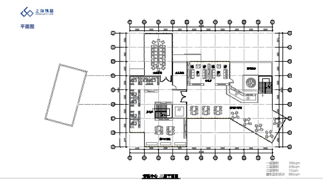
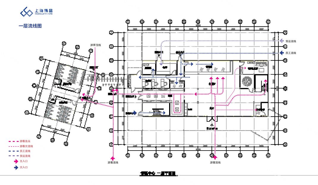
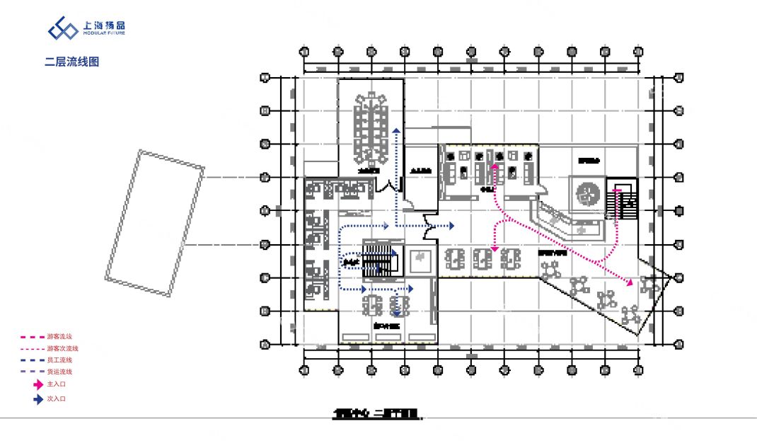
▼方案设计:







































